På plats!

Nu är vi inne i lägenheten!! Den är oändligt stor! Och ljus fast vi inte har några lampor för elen är inte påslagen ännu. Vi väntar på att de ska ringa nu så vi kan få igång kyl och frys mm.

20140701-130027-46827594.jpg

Nu kör vi!

Idag efter klockan tolv får vi hämta ut nycklarna till nya lägenheten! Jag jobbar ju, men Axel är hemma och kommer hänga på låset till områdeskontoret så fort klockan blir slagen. Jag ska se om jag kan gå lite tidigare från jobbet idag så vi kan dra igång med flytten så fort som möjligt. Vi har fått låna transporten i stallet och även en balkärra/trilla som är smidig att köra lådor på, blir nog toppen!

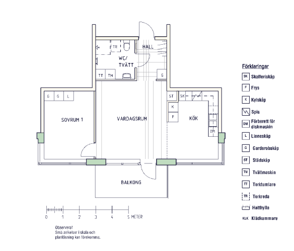
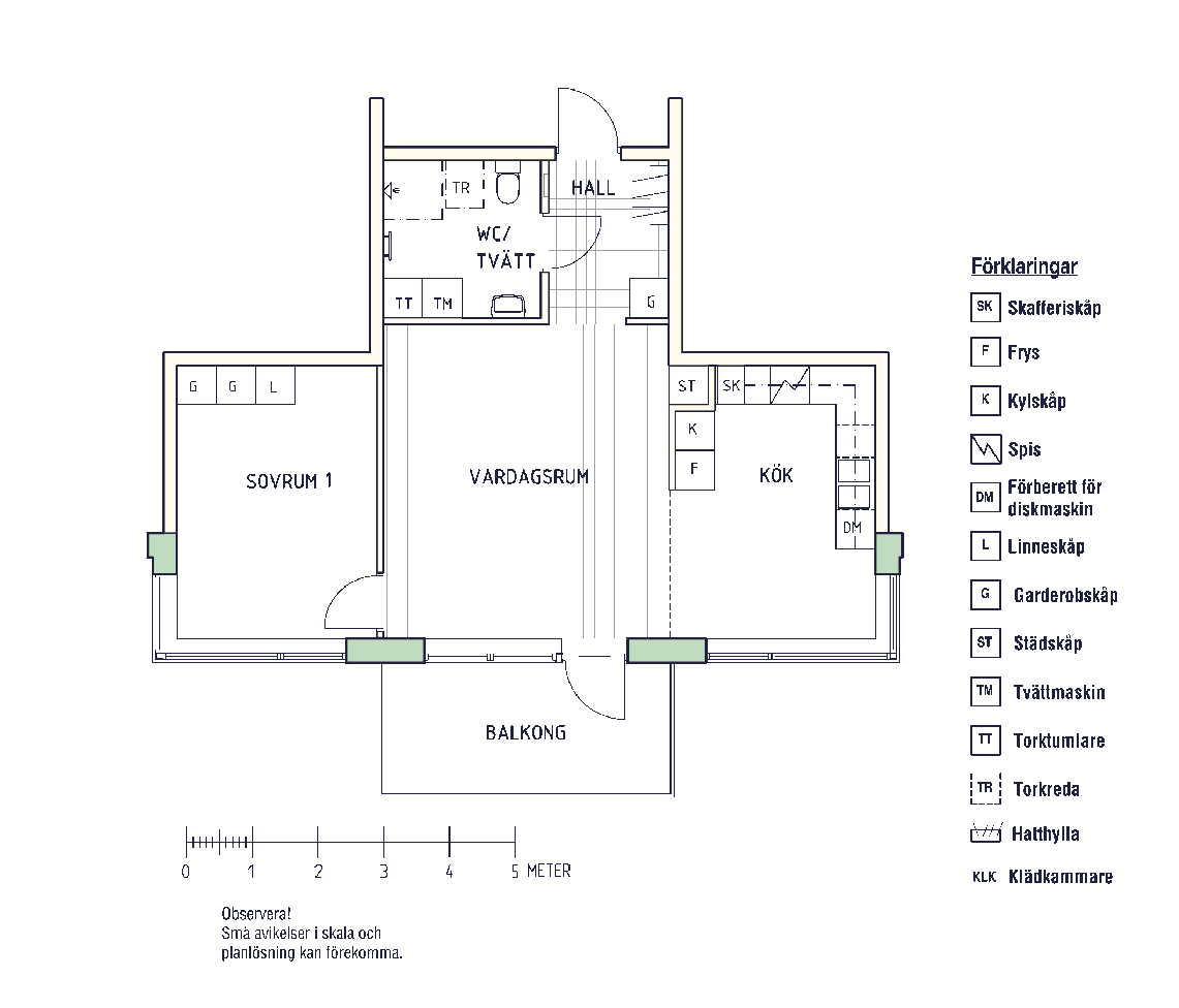
Förhoppningsvis kan jag bjuda på lite bilder så småningom, men här kommer i alla fall planlösningen på lägenheten! Den är på 58 kvadratmeter och ligger på första våningen av fyra, dock inte i markplan utan mer som en halvtrappa upp.

Lägenheten